雖說小戶型就該平庸,今天吉誠裝修公司小編為大家介紹的是一套36平米LOFT小戶型裝修設計,以小尺度空間的百變形態,為空間注入鮮活的靈魂,適配新一代年輕人群的多元生活主張,更是無限趨近于他們心目中理想生活的美好模樣!下面我們一起來看看吧。
![[裝修案例]36平米LOFT小戶型裝修設計 輕奢風適合年輕人的多元生活 [裝修案例]36平米LOFT小戶型裝修設計 輕奢風適合年輕人的多元生活](http://www.lagougou.cn/upload/portal/20200917/f1696e625c37ccb06620ad1d3eaa836b.jpg)
[裝修案例]36平米LOFT小戶型裝修設計 輕奢風適合年輕人的多元生活
▌面積:36平米
▌戶型:小戶型
▌風格:輕奢風??
▌定位:時尚優雅又富有個性的年輕人? ??
▌設計突破點:生活場景預設,合理空間分配
![[裝修案例]36平米LOFT小戶型裝修設計 輕奢風適合年輕人的多元生活 [裝修案例]36平米LOFT小戶型裝修設計 輕奢風適合年輕人的多元生活](http://www.lagougou.cn/upload/default/20200917/30de08ca83933b0328e65514a6a96fd2.jpg)
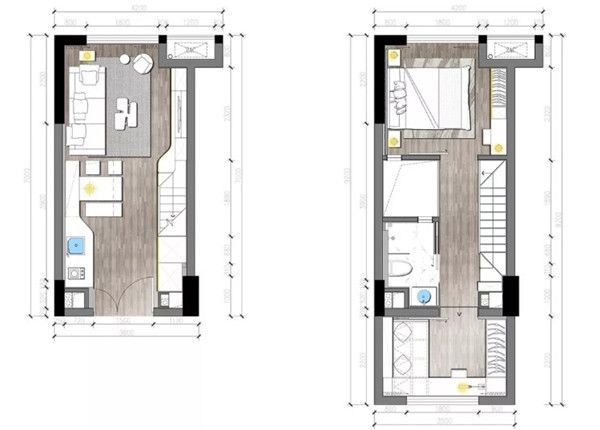
[裝修案例]36平米LOFT小戶型裝修設計 輕奢風適合年輕人的多元生活平面布置圖
【平面布置圖】
![[裝修案例]36平米LOFT小戶型裝修設計 輕奢風適合年輕人的多元生活 [裝修案例]36平米LOFT小戶型裝修設計 輕奢風適合年輕人的多元生活](http://www.lagougou.cn/upload/default/20200917/22439fd0d1e13f576a0a5540bac33c91.jpg)
▇空間大面積運用木藝材質,并適量點綴以雅潤有加的木色擺件。
![[裝修案例]36平米LOFT小戶型裝修設計 輕奢風適合年輕人的多元生活 [裝修案例]36平米LOFT小戶型裝修設計 輕奢風適合年輕人的多元生活](http://www.lagougou.cn/upload/portal/20200917/f1696e625c37ccb06620ad1d3eaa836b.jpg)
![[裝修案例]36平米LOFT小戶型裝修設計 輕奢風適合年輕人的多元生活 [裝修案例]36平米LOFT小戶型裝修設計 輕奢風適合年輕人的多元生活](http://www.lagougou.cn/upload/default/20200917/498db7c19ddf143d0e41508e3d2d2bad.jpg)
小戶型客廳設計
▇齊整有序的木藝電視柜、錯落有致的木藝屏風隔斷、樸拙質感的原木矮幾、藤藝單椅,看似簡單的工藝與材質,均散發著清簡雅澹的自然韻味。
![[裝修案例]36平米LOFT小戶型裝修設計 輕奢風適合年輕人的多元生活 [裝修案例]36平米LOFT小戶型裝修設計 輕奢風適合年輕人的多元生活](http://www.lagougou.cn/upload/default/20200917/2babf479767bf3cf7098e633f28c9a4b.jpg)
小戶型客廳設計
▇空間涵容著當代設計的美感和深度,飽含藝術的張力與渲染力,隨溫潤的色澤,緩緩流淌進居者心底,喚醒純凈優雅而灑脫恣意的年輕活力。
![[裝修案例]36平米LOFT小戶型裝修設計 輕奢風適合年輕人的多元生活 [裝修案例]36平米LOFT小戶型裝修設計 輕奢風適合年輕人的多元生活](http://www.lagougou.cn/upload/default/20200917/047fc81bc6a6fd25067d411f4b10ebb8.jpg)
小戶型客廳設計
▇空間以藏光、間接光源的形式豐盈視覺美感,半空中的書頁水晶吊燈讓光線自由散落,不設限的光影層次勾勒出流暢的空間線條。
![[裝修案例]36平米LOFT小戶型裝修設計 輕奢風適合年輕人的多元生活 [裝修案例]36平米LOFT小戶型裝修設計 輕奢風適合年輕人的多元生活](http://www.lagougou.cn/upload/default/20200917/8dae8d765203878047a97b0411d6dca5.jpg)
小戶型廚房設計
小戶型餐廳設計小戶型餐廳設計
▇二層空間從固化的常規墻體中抽離出來,大量運用透光玻璃,予人輕盈靈動的視覺觀感,折射著現代時尚的優雅格調。

小戶型二樓設計
▇生活的靈感迸發于細節之中,書房一隅的層疊書籍、木藝古建小模型、雪白瓷瓶等陳設品,展現了優雅隨性的生活風格。

小戶型二樓設計小戶型書房設計
▇靜坐此間,閑時讀書品茶,忙時埋首工作,生活與工作各不耽誤。
![[裝修案例]36平米LOFT小戶型裝修設計 輕奢風適合年輕人的多元生活 [裝修案例]36平米LOFT小戶型裝修設計 輕奢風適合年輕人的多元生活](http://www.lagougou.cn/upload/default/20200917/cf63a9c114a265102de3a984daf73ebf.jpg)
![[裝修案例]36平米LOFT小戶型裝修設計 輕奢風適合年輕人的多元生活 [裝修案例]36平米LOFT小戶型裝修設計 輕奢風適合年輕人的多元生活](http://www.lagougou.cn/upload/default/20200917/73dc3b97e1083eb742c316121eb2ddf3.jpg)
![[裝修案例]36平米LOFT小戶型裝修設計 輕奢風適合年輕人的多元生活 [裝修案例]36平米LOFT小戶型裝修設計 輕奢風適合年輕人的多元生活](http://www.lagougou.cn/upload/default/20200917/9d11e873e00e6e9c89619e6f58f73429.jpg)
![[裝修案例]36平米LOFT小戶型裝修設計 輕奢風適合年輕人的多元生活 [裝修案例]36平米LOFT小戶型裝修設計 輕奢風適合年輕人的多元生活](http://www.lagougou.cn/upload/default/20200917/9bc2fdd8baf7d887e55ed2ceff36b23d.jpg)
小戶型臥室設計小戶型臥室設計小戶型臥室設計臥室梳妝臺設計
以上就是吉誠裝修公司小編為大家分享的關于[裝修案例]36平米LOFT小戶型裝修設計 輕奢風適合年輕人的多元生活的相關內容介紹,小編推薦閱讀:房子裝修小戶型LOFT一居室裝修效果圖 小而全的功能空間